فن إتقان إظهار المخططات المعمارية

By: Marwan Marar August 23, 2025 Visualization 10 Min read

فن إتقان إظهار المخططات المعمارية

Ground Floor Presentation
© Marwan Marar

قد تكون مبدعًا في التصميم المعماري، لكن إن لم تُتقن عرض أفكارك وتصورها بأسلوب احترافي، فإنها قد تفقد الكثير من قيمتها. لطالما كان الإظهار المعماري أداة أساسية لا غنى عنها لتقديم المشروع بأفضل صورة ممكنة. ومع تطور تقنيات الإظهار والأدوات المستخدمة، بات من  الضروري التعمق وفهم الأساليب الحديثة  التي تضمن وضوح  الرسومات وجودتها.

بعد دراسة وتحليل عشرات من افضل الرسومات المعمارية التي تم اظهارها باستخدام التقنيات الحديثة، نستعرض في هذا المقال أهم القواعد والخطوات التي تساعدك على الارتقاء بمخططاتك إلى مستوى احترافي :

·         اجعل سير العمل منظمًا وسلسًا

·         الأصول (الأثاث والأشجار والأشخاص)

·         نوع و وزن الخط

·         لوحة الألوان

·         التفاصيل النهائية) الظلال, الحواشي, اللمسات النهائية(

1.اجعل سير العمل منظمًا وسلسًا

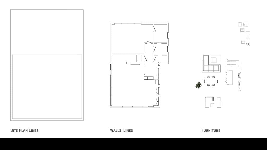
LINES
© Marwan Marar

إعلم أن ترتيب الملف ونظافة خطوطه لا يقلّان أهمية عن الإخراج النهائي للمخطط. كثيرًا ما يقع المعماريون، خصوصًا الطلبة في بداياتهم، في خطأ العمل العشوائي، ظنًا أن لجنة التقييم لن ترى سوى المخرجات النهائية المعروضة، دون الاطلاع على ملفات العمل المُخزّنة على أجهزتهم. قد تبدو هذه الفكرة منطقية في سياق الدراسة، لكنها لا تخدمك في بيئة العمل الاحترافية.

العمل المنظم والنظيف يسهل عليك عملية التعديل، ويُسرّع سير العمل في المراحل المتقدمة من المشروع. سواء كنت تستخدم أدوات مثل AutoCAD أو برامج ثلاثية الأبعاد مثل Revit، هناك قواعد بسيطة لكنها ضرورية لضمان سير عمل سلس واحترافي:

1.1. تأكد من أن الملف بصيغة صحيحة، وخالٍ من أي عناصر لا تتبع المشروع (مثل الرسومات المؤقتة أو النسخ الزائدة)، لأن ذلك قد يزيد من حجم الملف، وأن لا يكون هناك تكرار للخطوط قد يسبب أخطاء عند الطباعة أو التصدير.

1.2. نظّم الخطوط باستخدام طبقات (Layers)، بحيث تكون كل مجموعة عناصر على طبقتها الخاصة: الجدران، النوافذ، الأبواب، الأثاث، التعليقات التوضيحية (Annotations)، وغيرها. هذا يتيح لك التحكم بسهولة في سمك الخط، لونه، ونوعه، ويجعل التنقل داخل الملف أكثر فاعلية.

من الجيد الحفاظ على بساطة المخطط قدر الإمكان في المراحل الأولى من التصميم. فالمخطط البسيط سهل القراءة، ويقلل من التشويش البصري. لاحقًا، عندما تبدأ بإضافة التفاصيل والعناصر التكميلية، ستكتشف أن المخطط يحتوي بالفعل على عدد كبير من الطبقات والمكونات، مما يجعل التبسيط المبدئي خيارًا ذكيًا لتجنب التعقيد غير الضروري.

1.3. أحد العناصر الأساسية التي يجب مراعاتها أيضًا هو مقياس الرسم المستخدم في عرض المخطط. فالمقياس يؤثر بشكل مباشر على مستوى التفاصيل التي يمكنك عرضها:

  • عند استخدام مقياس كبير مثل 1:100 أو 1:50 ، سيكون هناك اهتمام أكبر بتضمين التفاصيل الدقيقة والعناية بإظهارها، مثل الأبواب، النوافذ، الأثاث، والتظليل (hatch)، وذلك لأن هذه العناصر ستكون واضحة وسهلة القراءة ضمن هذا المقياس.
  • أما عند استخدام مقياس صغير مثل 1:500 ، فإن درجة الاهتمام بالتفاصيل تقل بشكل طبيعي، لأن كثرة التفاصيل في هذا السياق قد تؤدي إلى تشويش بصري، ويصعب قراءتها بوضوح، مما يؤثر سلبًا على جودة الإخراج العام للمخطط.

لذا، معرفة مقياس الرسم مسبقًا يساعدك في اتخاذ قرارات مدروسة حول مستوى التفاصيل المطلوب، ويعكس وعيك المهني أثناء إعداد المخطط.

2.استخدام الأصول المعمارية في المخططات: بين التعبير البصري والدقة الوظيفية

Ground Floor
© Marwan Marar

في مرحلة معيّنة من التصميم، يصبح من الضروري الانتقال من المخطط التقني الصرف إلى تمثيل بصري نابض بالحياة يسرد القصة المعمارية ويعكس روح المشروع ورسالته. فالمخطط المعماري ليس مجرد أداة توضيحية، بل وسيلة لسرد رؤية معمارية متكاملة، حيث تلعب الأصول المعمارية—مثل الأثاث، النباتات، والتأثيرات البصرية دورًا محوريًا في إيصال هذه الرؤية. يخطئ العديد من المصممين، لا سيما الطلاب في بداياتهم، عندما يتعاملون مع الأصول كعناصر زخرفية أو إضافات شكلية فقط. بينما في الحقيقة، يمكن لتوظيف الأصول بطريقة مدروسة أن يُضفي على المخطط بُعدًا بصريًا يعزز من سرد القصة المعمارية ويزيد من قوة التعبير البصري.

لاستخدام الأصول بفعالية، ينبغي مراعاة مجموعة من العوامل التي تضمن تكامل العناصر مع لغة التصميم وتعزز وضوح المخطط، ومنها:

2.1 الأثاث:

يُعد الأثاث مؤشرًا بصريًا مهمًا لفهم طبيعة الوظائف التي يحتويها المبنى. فهو يوضح استخدام الفراغات ويشير إلى الفعاليات المختلفة في كل مساحة، كما يساعد على تصور ديناميكيات الحركة داخل المشروع. الأثاث ليس مجرد عنصر مرسوم، بل وسيلة لإضفاء الحياة داخل المخطط. والاهتمام باختيار وتوزيع الأثاث سيرتقي بعملك إلى مستوى آخر.

  • مقياس الأثاث: يجب أن يتوافق مع المقياس المستخدم في المخطط، لأن أي خلل في النسبة قد يؤدي إلى تشوهات بصرية تُضعف من فهم المساحة.
  • التوزيع المدروس: من الأفضل أن يتبع توزيع الأثاث الخطوط الرئيسية للمبنى، ويمكن تحقيق ذلك من خلال تصور شبكة وهمية ناتجة عن لغة التصميم الأساسية، بحيث يتكامل الأثاث مع تكوين المبنى ويعزّز إيقاعه البصري.
  • الحركة داخل الفراغ: ينبغي مراعاة أهمية المساحات الفارغة بقدر المفروشة، لضمان وضوح الحركة وسهولة التنقل. يجب تصميم المساحات الفارغة بشكل واعٍ ومدروس بما يحقق التوازن بين الامتلاء والفراغ
  • تفاصيل الأثاث بحسب المقياس: في المشاريع الصغيرة، مثل الوحدات السكنية، التي تُعرض عادة بمقاييس مثل 1:100 أو 1:50، يكون التركيز على تفاصيل الأثاث مناسبًا، إذ يُسهل هذا المقياس قراءة التفاصيل بوضوح.

2.2 النباتات:

تلعب النباتات دورًا حيويًا في تعزيز الاتصال بين المبنى وسياقه الطبيعي أو الحضري، سواء في المخطط الأرضي أو في مخطط الموقع. فهي لا تقتصر على كونها عناصر تجميلية، بل تضيف بُعدًا واقعيًا يساعد في فهم العلاقة بين الفضاءات الداخلية والخارجية، وتُثري المخطط بصريًا من خلال محاكاة عناصر الطبيعة.

  • التنوع البصري الواقعي: من المهم الابتعاد عن تكرار نوع واحد من النباتات بالحجم ذاته في جميع المساحات. هذا التكرار المبالغ فيه يؤدي إلى شعور بالجمود البصري ويُفقد المخطط طابعه الواقعي.
  • التوزيع المتناغم مع التصميم: يجب أن يتكامل توزيع النباتات مع لغة التصميم العامة للمخطط، ويمكن تحقيق ذلك من خلال تصور شبكة وهمية تستند إلى خطوط التصميم الأساسية.
Trees
© Marwan Marar
  • 2.3 Texture (Hatch) :

يعتمد توظيف الـ Hatch في المخطط على نوع المشروع وطبيعة المخطط المعماري؛ إذ يُستخدم الهاتش لإبراز الخامات والملمس البصري للمواد، ويُعد أكثر فاعلية في مخططات الموقع العام والمناظر الطبيعية مقارنةً بالمخططات الداخلية، حيث يكون التعبير عن المواد أكثر ارتباطًا بالسياق الخارجي والطبيعة المحيطة.

  • تحديد المناطق: ركز على المساحات الخارجية مثل المساحات الخضراء، الممرات، مواقف السيارات، وأحواض الزراعة.
  • الاعتدال في الكثافة: يجب اختيار نماذج Hatch بسيطة وواضحة، دون تعقيد أو ازدحام قد يُربك العين أو يتعارض مع خطوط التصميم الأساسية.
  • تحقيق التوازن البصري: حافظ على توازن بين المساحات التي تحتوي على Hatch وتلك الفارغة، لضمان تماسك المخطط بصريًا.
Texture
© Marwan Marar

3.نوع و وزن الخط

يُعدّ نوع الخط ووزنه من أهم العوامل المؤثرة في نجاح إظهار المخطط المعماري. فإهمال قواعد الرسم قد يسبب صعوبة في قراءة الرسومات وفهمها، إذ يعتقد بعض الطلبة أن هذه التفاصيل لا تؤثر على جودة التسليم النهائي، في حين أن الرسومات المعمارية أشبه بلغة بصرية؛ وأي خلل في قواعدها يمثل عائقًا أمام وضوحها.
لذلك، فإن العناية بنوع الخط ووزنه أمر أساسي، لأنه عنصر بصري قادر على رفع مستوى عملك بشكل ملحوظ.

 

Line Weigght
© Marwan Marar

فيما يلي أهم النقاط التي تساعدك على استخدام نوع ووزن الخط بشكل صحيح في رسوماتك:

3.1 نوع الخط: تتنوع الخطوط في الرسومات المعمارية تبعًا للمعلومة المراد إيصالها. سواءً كنت تستخدم CAD أو BIM، من المهم أن تدرك وظيفة كل نوع خط. وفيما يلي أهم الخطوط الشائعة:

  • الخطوط المتصلة (Continuous Lines)
    الاستخدام: تمثل الحواف المرئية وكل ما يقع على مستوى أو أسفل خط القطع.
    أمثلة: الجدران، الأعمدة، قطع الأثاث.
  • الخطوط المتقطعة (Hidden Lines)
    الاستخدام: توضح العناصر الموجودة أعلى خط القطع وغير المرئية مباشرة في المخطط.
    أمثلة: الدرج فوق مستوى القطع، خزائن المطبخ العلوية، فتحات السقف.
  • الخطوط المتقطعة مع نقاط (Dash-Dot Lines)
    الاستخدام: تُستخدم بكثرة في الرسومات التنفيذية لتحديد مراكز العناصر الدائرية أو محاور التناظر والتماثل.
    أمثلة: محاور الشبكة، محور تماثل واجهة، مركز عمود دائري.

3.2 وزن الخط: يشير وزن الخط في الرسم المعماري إلى سُمكه، حيث يساهم تغيير هذا السمك في توضيح أهمية العنصر ومدى قربه أو بعده عن المشهد. وبشكل عام، يمكن تصنيف أوزان الخطوط إلى ثلاثة مستويات: سميك، متوسط، رفيع. ورغم إمكانية إضافة سماكات أخرى، إلا أن ذلك غالبًا لا يُفضَّل. لذا يُستحسن الاكتفاء بثلاثة مستويات فقط، ما لم يتطلب المخطط تفاصيل دقيقة تستدعي استخدام أوزان إضافية.

  • لخطوط السميكة (Thick Lines)
    الاستخدام: لإظهار العناصر المقطوعة في مستوى القطع أو العناصر المهمة جدًا.
    أمثلة: الجدران المقطوعة، الأعمدة.
  • الخطوط المتوسطة (Medium Lines)
    الاستخدام: لإظهار العناصر الظاهرة لكنها غير مقطوعة، أي أبعد قليلًا عن خط القطع.
    أمثلة: الأثاث، النوافذ، الأبواب.
  • الخطوط الرفيعة (Thin Lines)
    الاستخدام: للتفاصيل الثانوية أو المعلومات الإضافية الأقل أهمية.
    أمثلة: الخطوط المخفية، خطوط الأبعاد، محاور الشبكة.

إرشادات عملية:
في حال استخدام برامج مثل CAD، يُفضل اعتماد أوزان متباينة بوضوح:

  • 0.4 مم أو أكثر: للخطوط السميكة.
  • 0.15 مم: للخطوط المتوسطة.
  • 0.05 مم: للتفاصيل الدقيقة.

إن الالتزام الصحيح بأنواع وأوزان الخطوط يضمن وضوح المخططات ودقتها، ويجعل عملية قراءتها أكثر سهولة واحترافية.

4.لوحة الألوان

Ground Floor Presentation
© Marwan Marar


تُعد الألوان من أهم العناصر البصرية المؤثرة في العروض التقديمية، إذ تمتلك أثرًا نفسيًا مباشرًا على إدراك الإنسان لما يراه. وعند العمل في شركة أو ضمن الاستوديو الخاص بك، غالبًا ما تكون هناك ألوان محددة تعكس هوية العلامة البصرية وتمثل شخصية المكان. تختلف طريقة استخدام الألوان من مشروع لآخر تبعًا لطبيعته وخصوصيته، إلا أنه في العروض التقديمية المعمارية يُفضَّل عادةً عرض الرسومات بالأبيض والأسود ودرجات الرمادي، لضمان وضوحها وراحتها للعين وسهولة قراءتها.

ولإبراز شخصية المشروع أو المصمم ومنحه هوية مميزة، يمكن إضافة لون واحد إضافي بلمسات بسيطة. ورغم عدم وجود قاعدة ثابتة، فإن العديد من الأعمال الاحترافية تتبع نسبة تقريبية تبلغ 85% أبيض وأسود و15% لون إضافي. هذه النسبة تتيح وضوح المخططات وسهولة قراءتها، مع الحفاظ على هوية بصرية مميزة تضيف طابعًا خاصًا للعرض.

5.التفاصيل النهائية ( الظلال, العناصر الايضاحية, واللمسات الختامية )

5.1. الظلال 

تُعدّ الظلال أداة بصرية فعّالة إذا استُخدمت بشكل صحيح، إذ تساعد على إبراز العمق، وإظهار البعد الثالث، وتوضيح مستويات الارتفاع. ومع ذلك، ينبغي الحذر عند استخدامها حتى لا تعيق قراءة المخطط، وذلك من خلال توظيفها بنسبة قليلة وبشفافية عالية.

DROP SHADOW
© Marwan Marar

هناك أنواع رئيسية للظلال في العرض المعماري:

    • الظل الواقعي:
      1. Cast Shadow: الظل الذي يسقط على سطح آخر نتيجة حجب عنصر ما للضوء (مثل ظل عمود يسقط على الأرض).
      2. Ambient Occlusion: الظل الداكن جدًا عند نقطة ملامسة العنصر للسطح، ويعطي إحساس بأن الجسم “مستقر” على الأرض وليس طائرًا.
      • الظل المصطنع (Drop Shadow)
        ظل بسيط يضاف رقميًا خلف العنصر ليعطيه إحساس بالعمق أو الانفصال عن الخلفية. يُستخدم غالبًا في برامج الجرافيك مثل Photoshop أو العرض التقديمي لإبراز عنصر على المخطط أو الصورة.

1.العناصر الإيضاحية 

تشمل العناصر الأساسية التي تُضاف إلى الرسومات المعمارية مثل علامة الشمال، مقياس الرسم، واسم المخطط. هذه الإضافات ضرورية لفهم الرسومات بدقة، كما تعكس احترافية المصمم وحرصه على تقديم عمل متكامل ومسؤول.

خاتمة

وفي الختام، يجب أن ندرك أن العمل الإبداعي لا حدود له، ولكن الالتزام بالنقاط التي ذكرناها يضمن قوة بصرية ووضوحًا في الرسومات المعمارية. ومع التغذية البصرية المستمرة والممارسة المتواصلة، يمكن أن ترتقي إلى مستويات عالية من الاحترافية في الإظهار المعماري.

Leave a Comment

Your email address will not be published. Required fields are marked *

Shopping Cart
  • Your cart is empty.